
סוג הלם אירופאי חשמלי יחיד קורת התקרה
אירופה יחיד קורת הגג העגורן העליון הוא קומפקטי הרמת מכונות שתוכננו וייצור בהתאם קפדנית עם FEM ו DIN רגיל, אשר עם טכנולוגיה מתקדמת ועיצוב יפה. מחולק סוג כללי סוג ההשעיה, תמיכה בשימוש האירופי סטנדרטי מנוף חשמלי, מתאים סדנה מחסן חומר טיפול, חלקים גדולים הרכבה דיוק במקומות אחרים.
סוג הלם אירופאי חשמלי יחיד קורת התקרה
תיאור קצר:
אירופה יחיד קורת הגג העגורן העליון הוא קומפקטי הרמת מכונות שתוכננו וייצור בהתאם קפדנית עם FEM ו DIN רגיל, אשר עם טכנולוגיה מתקדמת ועיצוב יפה. מחולק סוג כללי סוג ההשעיה, תמיכה בשימוש האירופי סטנדרטי מנוף חשמלי, מתאים סדנה מחסן חומר טיפול, חלקים גדולים הרכבה דיוק במקומות אחרים.

זה יכול בשימוש נרחב בייצור מכונות, מטלורגיה, נפט, petrifaction, הנמל, הרכבת, תעופה אזרחית, מזון, ביצוע נייר, בנייה, תעשיות אלקטרוניקה סדנה, מחסן ועוד חומר טיפול במצבים, esp. להחיל על חומר טיפול שצריך מיקום מדויק, רכיבים גדולים הרכבה מדויק המצב.

תמונות מפורטות:

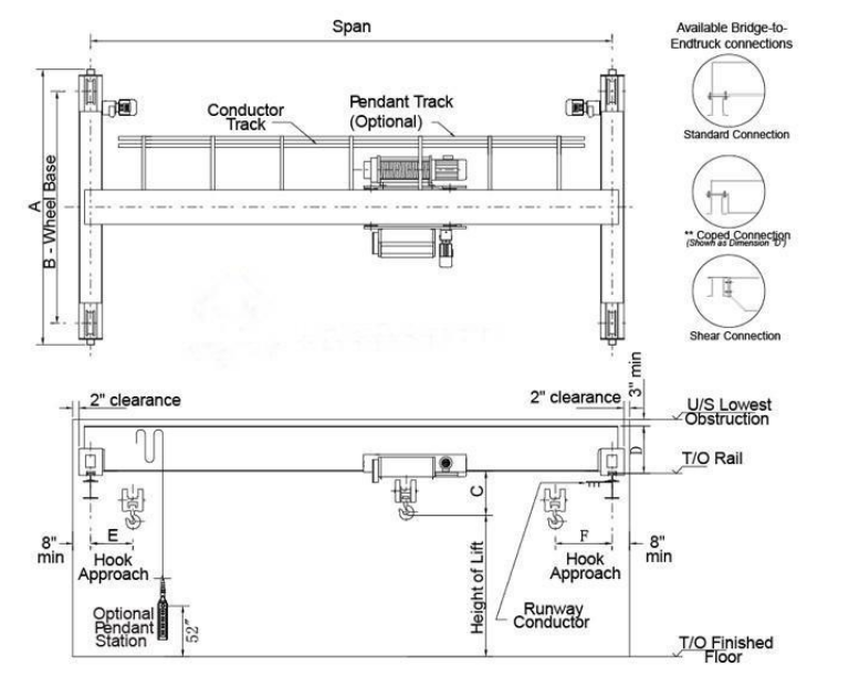
ציור סקיצה:

פרמטרים טכניים:
לְהַקִיף | M | 7.5 | 10.5 | 13.5 | 16.5 | 19.5 | 22.5 | 25.5 |
קיבולת | t | 1 ~ 12.5t | ||||||
משקל כולל | ק"ג | 1781 ~ 12086 | ||||||
משקל עגלה | ק"ג | 405 ~ 740 | ||||||
מקסימלי עומס גלגל | kn | 13.5 ~ 90.94 | ||||||
רכבת נסיעות | P24 ~ P43 | |||||||
מהירות הרמה | מ '/ דקות | 0.8 / 5 | 0.8 / 5 | 0.8 / 5 | 0.8 / 5 | 0.8 / 5 | 0.8 / 5 | 0.8 / 5 |
גובה הרמה | M | ≥ 6 | ≥ 6 | ≥ 6 | ≥ 6 | ≥ 6 | ≥ 6 | ≥ 6 |
סה"כ כוח מנוע | ק"ו | 4.31 | 4.31 | 4.31 | 4.31 | 4.67 | 4.67 | 4.67 |
מהירות מנוף | מ '/ דקות | 3-30 | 3-30 | 3-30 | 3-30 | 3-30 | 3-30 | 3-30 |
מהירות טרולי | מ '/ דקות | 2-20 | 2-20 | 2-20 | 2-20 | 2-20 | 2-20 | 2-20 |
עבודה חובה | M5 / A5 | |||||||


English
dansk
اردو
Bai Miaowen
Português
Norsk
فارسی
Ar hñä ar Keleitaluoaotuomi
Deutsch
日本語
hrvatski
ไทย





