
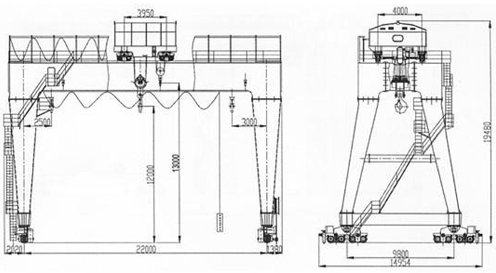
מנוף הרמה, כפול קרן Gantry קריין 30 טון
קרן כפולה עגורן פיגום עם ווים מוחל מחוץ למחסן או הרכבת לצדדים לעשות הרמת נפוצות ועובד פריקה. סוג זה של קריין מורכב גשר, תומך רגליים, איבר נוסע עגורן, עגלה עם כננת הרמה חזק, ציוד חשמלי, מערכת הבקרה. כמו העיצוב הכבדות שלו, זה יכול להיות בשימוש נרחב בכל מיני סוגים של השדה תעשייתי.
מנוף הרמה, כפול קרן gantry קריין 30 טון
קרן כפולה עגורן פיגום עם ווים מוחל מחוץ למחסן או הרכבת לצדדים לעשות הרמת נפוצות ועובד פריקה. סוג זה של קריין מורכב גשר, תומך רגליים, איבר נוסע עגורן, עגלה עם כננת הרמה חזק, ציוד חשמלי, מערכת הבקרה. כמו העיצוב הכבדות שלו, זה יכול להיות בשימוש נרחב בכל מיני סוגים של השדה תעשייתי.






English
dansk
اردو
Bai Miaowen
Português
Norsk
فارسی
Ar hñä ar Keleitaluoaotuomi
Deutsch
日本語
hrvatski
ไทย





